你与好的布局可能就是差了一道门的步骤!门,登堂入室的第一要素,大多数人装修时却常常忽视它的存在,家里仅仅改了一扇门,就能影响整体的幸福感与居住体验,今天福熙防盗门和大家分享下如何测量:
一、了解防盗门
福熙防盗门15年专注中高端双色防盗门和防盗防爆锁的高新技术型快猫回家导航,配有防盗锁,在一定时间内可以抵抗一定条件下非正常开启,具有一定安全防护性能并符合相应防盗安全级别的门。
俗话说,内行看门道,外行看热闹。首先一樘防盗门的设计、福熙双色防盗门,正面更漂亮、反面好搭配,质感的好坏最先表现在外观上,外观细节精美、触感舒服的门快猫官网下载一般不会差;所以说这时候你要是有一手好的量门技巧与方法,今天和福熙防盗门一起来学习学习吧。
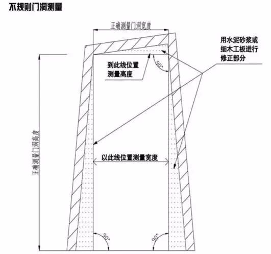
安装门之前的门洞测量工作非常重要!第一手了解客户的门洞现场,判断定门尺寸,为客户推荐可定制的款式,体现专业度和服务高效化尤为重要。
鲁班尺▲ 水平仪▲
注:在测量过程中要注意地面处理情况,要预留出合适的尺寸以备所需。门扇高度、门洞高度差额为5-10mm,门扇厚度标准为38mm和45mm,要和门框互相配合。